Casa en venta

Chiloeches
378.000 €
3 dormitorios 3 dormitorios
190 m2 190 m2
3 baños 3 baños

Casa en venta

Chiloeches

Descripción anuncio

Agencia inmobiliaria de Yebes zona VALDELUZ - HORCHE - CHILOECHES Oficina Tecnocasa situada en Valdeluz, C/ Encina n°2 (Local):

EN VENTA: CHALET ADOSADO CON PISCINA CHILOECHES

Cabe destacar su proximidad al Hospital Universitario de Guadalajara y al centro comercial. Se encuentra a 5 minutos de Guadalajara Capital y a 30 minutos de Madrid por lo que su ubicación es excelente.

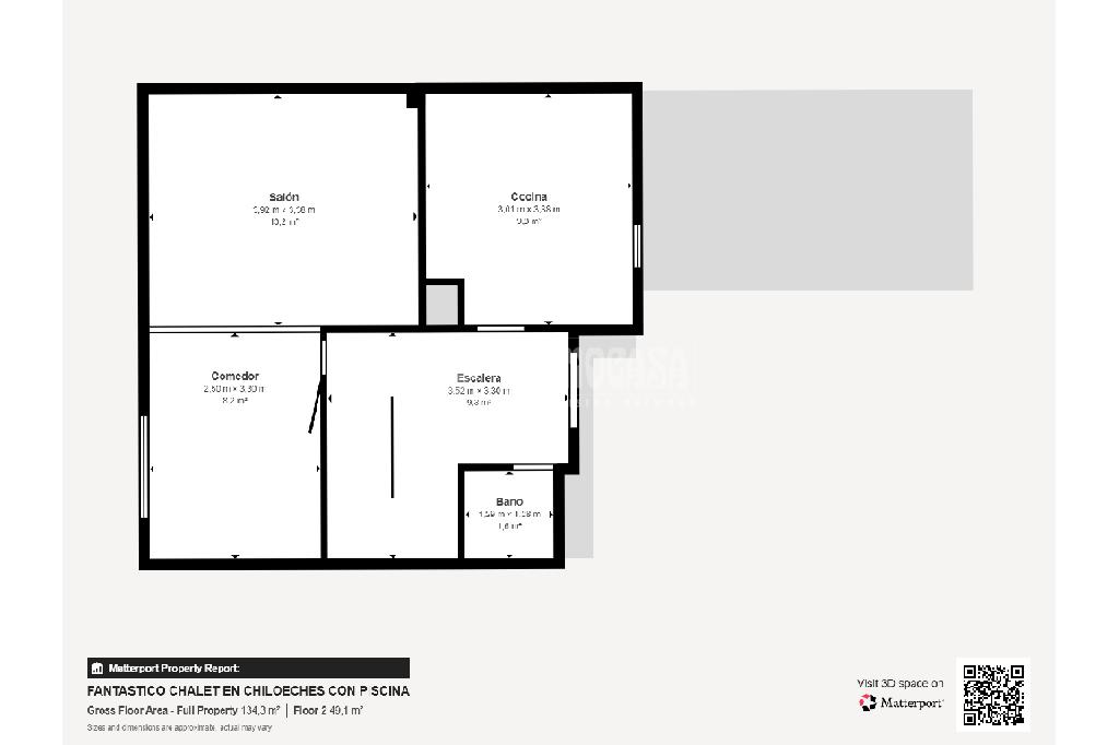
Chalet adosado con piscina distribuido de la siguiente manera:

- En planta baja encontramos un gran hall recibidor con acceso a cocina totalmente amueblada de buenas dimensiones con espacio para office, aseo con ventana, gran salón independiente con aire acondicionado, muy luminoso con acceso directo al patio, el cual cuenta con un gran porche totalmente acondicionado para el verano, también cuenta con una gran piscina de 17m2 aprox en perfectas condiciones.

- En planta alta encontramos 3 amplios dormitorios todos ellos con armarios empotrados y dos cuartos de baño completos (uno de ellos en suite principal).

- En planta baja tenemos un amplio garaje con gran capacidad, también cuenta con una sala ideal para poner el gimnasio.

GRAN OPORTUNIDAD!

¡No dudes en venir a verla porque puede ser lo que estas buscando!

Además te recordamos que te ayudamos con la financiación de la vivienda gracias a nuestro departamento financiero KIRON. Hasta el 100% de la hipoteca.

INFÓRMATE SIN NINGÚN TIPO DE COMPROMISO EN NUESTRA OFICINA, LLÁMANOS AL TELÉFONO QUE APARECE EN EL ANUNCIO.

Ver más

Características

Ref.:
639373
Libre:
Tipo de inmueble:
Media
Año de construcción:
2005
Ver más
Precio Precio
378.000 €
Cuota mensual Cuota mensual
€ 1.198 / mes

Clase energética

D
D
D
D
D
D
D
D
D
Consumo de energia:
63 kW h/m² año
Emisiones:
112 Kg CO2/m² año
Año de construcción:
2005

Servicios cercanos

Transporte público Transporte público
Guadalajara/Yebes
Guadalajara/Yebes
3,0 Km
Transporte público
610 m
Colegios Colegios
Colegio Público José Inglés
150 m
IES Peñalba
1,3 Km
Farmacias Farmacias
Farmacia
540 m
restaurantes restaurantes
Mesón Las Cuevas
2,5 Km
Ver más

Calcula tu hipoteca

Simple y sin compromiso
Entrada
%
al mes
Hipoteca
%
El resultado de esta simulación es orientativo. Los datos indicados no corresponden a condiciones reales de productos y no implican compromiso, obligación o vínculo jurídico-legal para el Grupo Tecnocasa.

Solicita un asesoramiento

Introduce tus datos
GRACIAS POR CONTACTAR CON NOSOTROS.
Esta oficina de Kìron se pondrá en contacto contigo lo antes posible para ofrecerte un asesoramiento financiero más completo y acorde a la información que nos has facilitado.
Franquiciado
Estudio Ciudad Valdeluz Slu
Calle Encina (Urb.Valdeluz), 2A Local 1 19139 Yebes - Valdeluz (GU)
Calle Encina (Urb.Valdeluz), 2A Local 1 19139 Yebes - Valdeluz (GU) Zona: VALDELUZ - HORCHE - CHILOECHES
Lunes a Viernes: 09:30 a 14:00 - 17:00 a 21:00. Sábados: 10:00 a 14:00. Sábados tarde y Domingos previa cita

Nuestro equipo


  • Juan Manuel Moratilla
    Responsable

  • Ivan Vera
    Colaborador

  • Sofia Paiva
    Colaborador

  • Fernando Arrantes
    Colaborador
Franquiciado
Estudio Ciudad Valdeluz Slu
Calle Encina (Urb.Valdeluz), 2A Local 1 19139 Yebes - Valdeluz (GU)

Franquiciado
Estudio Ciudad Valdeluz Slu
Franquiciado
Estudio Ciudad Valdeluz Slu

2025 Ibero Group Tecnocasa Services, S.L.U. - CIF B-65870776 - C/ Pallars, nº 1-3 Parque de Negocios Mas Blau II, 08820, El Prat de Llobregat (Barcelona-España). Red en franquicia - Cada sociedad franquiciada tiene su propio titular y es independiente del franquiciador.

Política de privacidad | Aviso legal | Pólitica de las Cookies | Información al consumidor | | Canal ético