Piso en venta

Horche
173.000 €
3 dormitorios 3 dormitorios
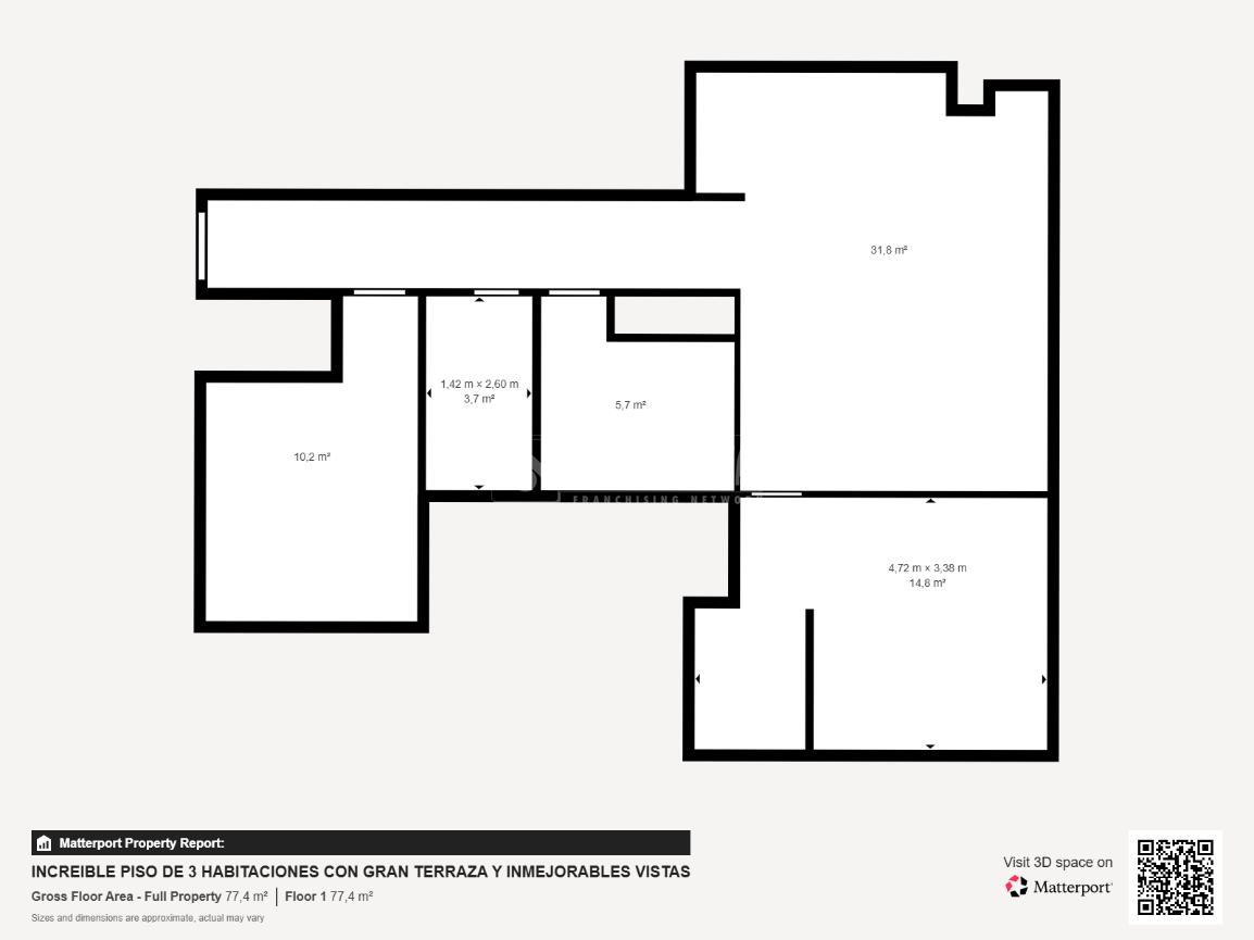
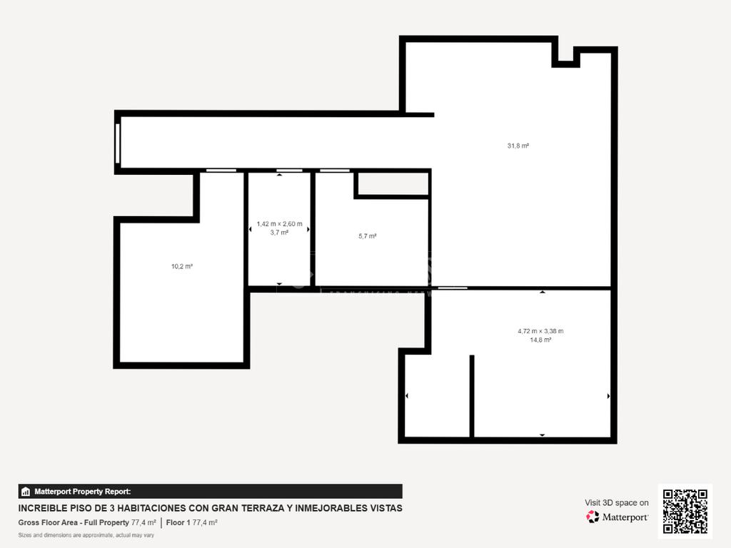
112 m2 112 m2
2 baños 2 baños

Piso en venta

Horche

Descripción anuncio

Agencia inmobiliaria de Yebes zona VALDELUZ - HORCHE - CHILOECHES Oficina Tecnocasa situada en C/ Encina n°2 (Valdeluz):

EN VENTA: PISO CON INMEJORABLES VISTAS situado en Horche, rodeado de todo tipo de servicios a su alrededor como supermercados, transporte público, rápida salida a la autovía A2 y N-320, bancos, pequeños comercios, colegio, farmacia, centro de salud, zonas verdes, parking, etc.

Cabe destacar la proximidad del municipio al Hospital Universitario de Guadalajara y al centro comercial.

Se encuentra a 8 minutos de Guadalajara Capital y a 35 minutos de Madrid por lo que su ubicación es excelente.

La vivienda consta de 3 amplios dormitorios y 2 cuartos de baños completos con ventana (uno de ellos en suite principal), cabe destacar que la cocina esta estrenar al igual que el piso ya que no se ha vivido en el prácticamente en el. La vivienda cuenta con un gran terraza con inmejorables vistas a la vega de Horche.

Garaje y trastero incluido en el precio.

¡OPORTUNIDAD!

¡No dudes en venir a verla porque puede ser lo que estas buscando!

Además, te recordamos que te ayudamos con la financiación de la vivienda gracias a nuestro departamento financiero KIRON. Hasta el 100% de la hipoteca.

INFÓRMATE SIN NINGÚN TIPO DE COMPROMISO EN NUESTRA OFICINA, LLÁMANOS AL TELÉFONO QUE APARECE EN EL ANUNCIO.

Ver más

Características

Ref.:
579613
Planta:
2
Libre:
Tipo de inmueble:
Popular
Año de construcción:
2006
Ver más
Precio Precio
173.000 €
Cuota mensual Cuota mensual
€ 548 / mes

Clase energética

F
F
F
F
F
F
F
F
F
Consumo de energia:
123 kW h/m² año
Emisiones:
89 Kg CO2/m² año
Año de construcción:
2006

Servicios cercanos

Colegios Colegios
C.E.I.P. San Roque
1,1 Km
Farmacias Farmacias
Farmacia
350 m
Supermercados Supermercados
Dia
560 m
Tiendas Tiendas
Tiendas
350 m
Bar Bar
Cafetería
360 m
restaurantes restaurantes
Restaurantes
410 m
Restaurante Merendero La Vega
2,6 Km
Ver más

Calcula tu hipoteca

Simple y sin compromiso
Entrada
%
al mes
Hipoteca
%
El resultado de esta simulación es orientativo. Los datos indicados no corresponden a condiciones reales de productos y no implican compromiso, obligación o vínculo jurídico-legal para el Grupo Tecnocasa.

Solicita un asesoramiento

Introduce tus datos
GRACIAS POR CONTACTAR CON NOSOTROS.
Esta oficina de Kìron se pondrá en contacto contigo lo antes posible para ofrecerte un asesoramiento financiero más completo y acorde a la información que nos has facilitado.
Franquiciado
Estudio Ciudad Valdeluz Slu
Calle Encina (Urb.Valdeluz), 2A Local 1 19139 Yebes - Valdeluz (GU)
Calle Encina (Urb.Valdeluz), 2A Local 1 19139 Yebes - Valdeluz (GU) Zona: VALDELUZ - HORCHE - CHILOECHES
Lunes a Viernes: 09:30 a 14:00 - 17:00 a 21:00. Sábados: 10:00 a 14:00. Sábados tarde y Domingos previa cita

Nuestro equipo


  • Juan Manuel Moratilla
    Responsable

  • Ivan Vera
    Colaborador

  • Sofia Paiva
    Colaborador

  • Fernando Arrantes
    Colaborador
Franquiciado
Estudio Ciudad Valdeluz Slu
Calle Encina (Urb.Valdeluz), 2A Local 1 19139 Yebes - Valdeluz (GU)

Franquiciado
Estudio Ciudad Valdeluz Slu
Franquiciado
Estudio Ciudad Valdeluz Slu

2025 Ibero Group Tecnocasa Services, S.L.U. - CIF B-65870776 - C/ Pallars, nº 1-3 Parque de Negocios Mas Blau II, 08820, El Prat de Llobregat (Barcelona-España). Red en franquicia - Cada sociedad franquiciada tiene su propio titular y es independiente del franquiciador.

Política de privacidad | Aviso legal | Pólitica de las Cookies | Información al consumidor | | Canal ético