Piso en venta

Yebes - Valdeluz
216.000 €
2 dormitorios 2 dormitorios
111 m2 111 m2

Piso en venta

Yebes - Valdeluz

Descripción anuncio

Agencia inmobiliaria de Yebes zona VALDELUZ - HORCHE - CHILOECHES Oficina Tecnocasa situada en Valdeluz, C/ Encina n°2 (Local):

EN VENTA: VIVIENDA EN VALDELUZ

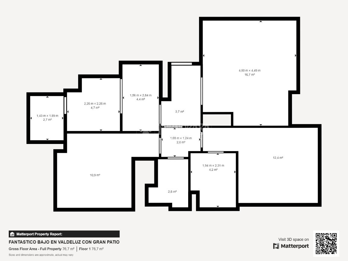
Espectacular bajo de 2 habitaciones y 2 baños, rodeado de todo tipo de servicios a su alrededor como supermercado, transporte publico, rápida salida a la N-320 y autovía A2, bancos, pequeños comercios, colegio, farmacia, centro de salud, zonas verdes, parking, etc.

Cabe destacar la ESTACIÓN DE AVE y la proximidad del municipio al Hospital Universitario de Guadalajara y al centro comercial.

Se encuentra a 5 minutos de Guadalajara Capital y a 30 minutos de Madrid por lo que su ubicación es excelente.

En perfectas condiciones, en urbanización privada con piscina, pista de pádel, columpios, seguridad y conserje.

La vivienda cuenta con un hall recibidor muy amplio, que da acceso a salón, cocina y otro recibidor para habitaciones y baños.

El salón de gran luminosidad, nos da paso al gran patio individual con muchísimas posibilidades, encontrándose éste dentro del residencial en la cara interna de la vivienda.

La cocina nos da paso a la terraza interior, ideal para utilizar como cuarto auxiliar de lavadora, secadora, etcétera.

El pasillo/hall secundario da acceso a la primera habitación, a un baño completo y a la habitación principal con baño propio, ambos dormitorios con grandes armarios empotrados vestidos interiormente.

Trastero y garaje incluido en el precio.

Si buscas una vivienda cómoda, con mucho espacio y mil posibilidades cerca de Guadalajara, no dejes pasar el momento, ¡VEN A VERLO!

Te recordamos que con KIRON podemos llegar a conseguir hasta el 100% del valor del inmueble, acércate y te realizaremos un estudio financiero sin ningún compromiso.

INFÓRMATE SIN NINGÚN TIPO DE COMPROMISO EN NUESTRA OFICINA, LLÁMANOS AL TELÉFONO QUE APARECE EN EL ANUNCIO.

Ver más

Características

Ref.:
625049
Libre:
No
Tipo de inmueble:
Media
Año de construcción:
2006
Ver más
Precio Precio
216.000 €
Cuota mensual Cuota mensual
€ 672 / mes

Clase energética

F
F
F
F
F
F
F
F
F
Consumo de energia:
92 kW h/m² año
Emisiones:
106 Kg CO2/m² año
Año de construcción:
2006

Servicios cercanos

Transporte público Transporte público
Guadalajara/Yebes
Guadalajara/Yebes
2,1 Km
Transporte público
170 m
Colegios Colegios
CEIP Luz de Yebes
690 m
Farmacias Farmacias
Farmacia
400 m
Hospitales Hospitales
Sanatorio de Alcohete
1,8 Km
Supermercados Supermercados
Simply
740 m
Tiendas Tiendas
Tiendas
320 m
Bar Bar
Capri
320 m
Moon
360 m
restaurantes restaurantes
Tramonti
310 m
Restaurantes
720 m
Ver más

Calcula tu hipoteca

Simple y sin compromiso
Entrada
%
al mes
Hipoteca
%
El resultado de esta simulación es orientativo. Los datos indicados no corresponden a condiciones reales de productos y no implican compromiso, obligación o vínculo jurídico-legal para el Grupo Tecnocasa.

Solicita un asesoramiento

Introduce tus datos
GRACIAS POR CONTACTAR CON NOSOTROS.
Esta oficina de Kìron se pondrá en contacto contigo lo antes posible para ofrecerte un asesoramiento financiero más completo y acorde a la información que nos has facilitado.
Franquiciado
Estudio Ciudad Valdeluz Slu
Calle Encina (Urb.Valdeluz), 2A Local 1 19139 Yebes - Valdeluz (GU)
Calle Encina (Urb.Valdeluz), 2A Local 1 19139 Yebes - Valdeluz (GU) Zona: VALDELUZ - HORCHE - CHILOECHES
Lunes a Viernes: 09:30 a 14:00 - 17:00 a 21:00. Sábados: 10:00 a 14:00. Sábados tarde y Domingos previa cita

Nuestro equipo


  • Juan Manuel Moratilla
    Responsable

  • Ivan Vera
    Colaborador

  • Daniel Prieto
    Colaborador
Franquiciado
Estudio Ciudad Valdeluz Slu
Calle Encina (Urb.Valdeluz), 2A Local 1 19139 Yebes - Valdeluz (GU)

Franquiciado
Estudio Ciudad Valdeluz Slu
Franquiciado
Estudio Ciudad Valdeluz Slu

2025 Ibero Group Tecnocasa Services, S.L.U. - CIF B-65870776 - C/ Pallars, nº 1-3 Parque de Negocios Mas Blau II, 08820, El Prat de Llobregat (Barcelona-España). Red en franquicia - Cada sociedad franquiciada tiene su propio titular y es independiente del franquiciador.

Política de privacidad | Aviso legal | Pólitica de las Cookies | Información al consumidor | | Canal ético